| MLJS ARQUITECTOS MARGARIDA LAMEIRO + JORGE SANTOS |
|||
| PROJECTOS SERVIÇOS EQUIPA CONTACTOS |
HABITAÇÃO COMÉRCIO EDUCAÇÃO SERVIÇOS MOBILIÁRIO |
CASA VILA NOVA CASA GRAÇA MORADIA ARPIM [BREVEMENTE] EDIFÍCIO DA BOA-HORA [BREVEMENTE] MORADIA CARDOSAS [BREVEMENTE] MORADIA FUNCHEIRA [BREVEMENTE] |
|
![]() |
|||
| 01 02 03 04 05 PLT | |||
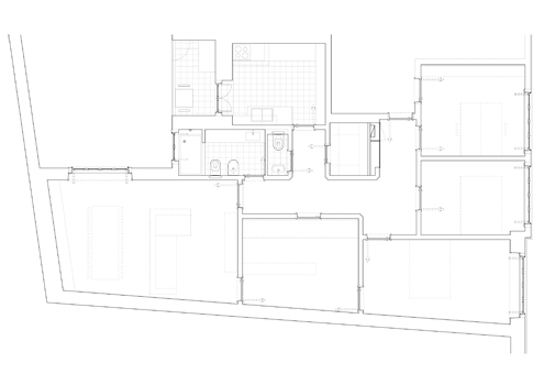
| CASA GRAÇA [CONCLUÍDO] Reabilitação de apartamento com 120m2, construído nos anos 40, em mau estado de conservação. A sua organização original é mantida: sequência de espaços interligados por um corredor de generosa dimensão. Por razões económicas é preservada a localização do núcleo de humidos (cozinha e instalação sanitária) realizando-se um acrescento de lavabo social dentro da área da instalação sanitária original. São preservados e recuperados os materiais originais: madeira (pavimento, rodapés e vãos), gesso (tectos) e mosaico hidráulico (cozinha e instalações sanitárias). A nível infra-estrutural a recuperação foi total. Considerada a substituição integral da rede de esgotos, de abastecimento de águas, electricidade e telecomunicações. |
|||