| MLJS ARQUITECTOS MARGARIDA LAMEIRO + JORGE SANTOS |
|||
| PROJECTOS SERVIÇOS EQUIPA CONTACTOS |
HABITAÇÃO COMÉRCIO EDUCAÇÃO SERVIÇOS MOBILIÁRIO |
ARMAZÉM LOJA ÓPTICA [BREVEMENTE] |
|
![]() |
|||
| 01 PLT CRT | |||
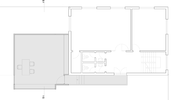
| ARMAZÉM [ESTUDO PRÉVIO] Solicitação de cliente privado para acrescendo de escritório no interior de um armazém de fabrico de peças plásticas. A proposta considerou uma intervenção mínima: o assentamento de um novo e depurado volume junto aos escritórios já construídos no interior do armazém. |
|||