MLJS ARQUITECTOS
MARGARIDA LAMEIRO + JORGE SANTOS
 
PROJECTOS
SERVIÇOS
EQUIPA
CONTACTOS
HABITAÇÃO
COMÉRCIO
EDUCAÇÃO
SERVIÇOS
MOBILIÁRIO
ATL A-DOS-EIROS  
 
PLT ATL
01 02 03 PLT
ATL A-DOS-EIROS
[PROJECTO BASE]
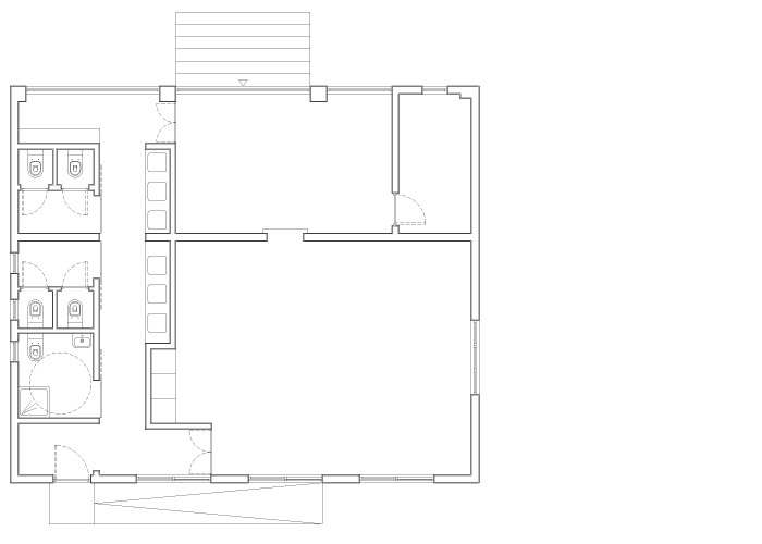
O projecto consiste na beneficiação do espaço de cuidados educativos, ATL de A-dos-Eiros.
O conjunto edificado que constitui o recinto escolar - construído por volta dos anos 60 - está, de modo geral, em mau estado de conservação. A própria organização do espaço existente já não corresponde às necessidades próprias da utilização pretendida para o mesmo.
Com vista na recuperação a baixos custos, a proposta consiste em manter a localização dos núcleos de águas, incluindo a criação de instalações sanitárias divididas por géneros e uma apropriada para mobilidade reduzida.
Ainda associado ao núcleo de águas e como separação dos restantes espaços (sala de ATL e sala de leitura) estão bancadas com lavatórios e copa da sala.
Neste espaço educativo não é previsto servir refeições. A copa da sala serve propósitos higiénicos relacionados com actividades artísticas e criativas.

Facebook